Informuojame, kad svetainėje naudojami slapukai (angl. cookies) produktų krepšelio formavimui bei tinkamam šios svetainės funkcionavimui. Detalesnę informaciją apie naudojamus slapukus, bei kaip atsisakyti savo sutikimo, galite rasti čia.

Sutinku uždaryti

Namo projektas Eduardas

Bendra informacija

Bendras plotas 127,87 m2
Gyvenamasis plotas 86,61 m2
Užstatymo plotas 98,83 m2
Ilgis 6,96 m
Plotis 14,20 m
Aukštis 8,02 m
Stogo pasvirimas 45°
Perkant internetu € 1.665,00
Namo projekto kaina € 1.850,00
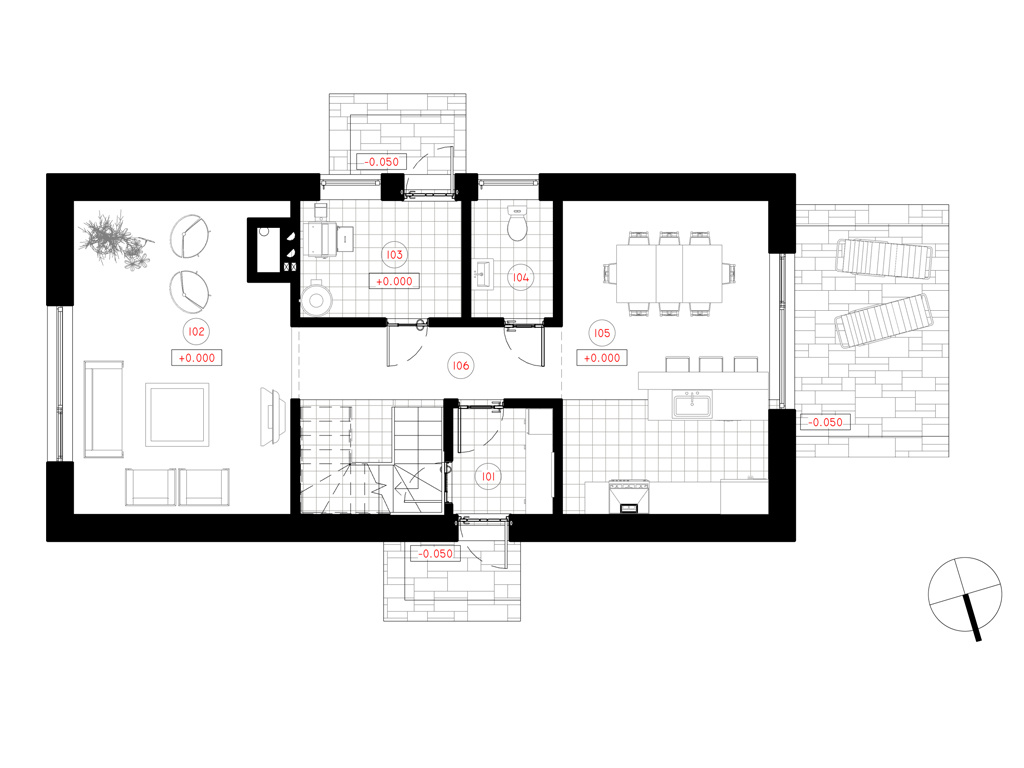
101. Tambūras 4,00  m2
102. Svetainė 24,78  m2
103. Katilinė 7,17  m2
104. Sanmazgas 3,62  m2
105. Virtuvė - valgomasis 23,70  m2
106. Holas - laiptinė 10,65  m2
Viso: 73,92 m2

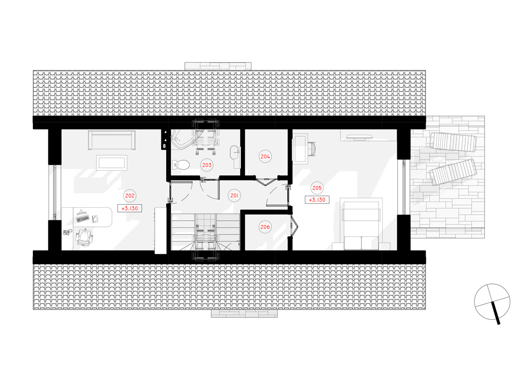
Pirmo aukšto planas

201. Holas - laiptinė 5,57  m2
202. Darbo kambarys 18,99  m2
203. Sanmazgas 4,88  m2
204. Sandėliukas 3,04  m2
205. Tėvų miegamasis 19,14  m2
206. Drabužinė 2,35  m2
Viso: 53,97 m2

Antro aukšto planas

Video

Pastato duomenys

Aukštų skaičius 2
Kambarių skaičius 2
Sanmazgų skaičius 2
Naudingas plotas 127,87 m2
Pamatų konstruktyvas pagal geologiją 350 € + PVM
Kaina su statybos leidimu 3500 € + PVM
Namo projekto 3D modelis 219 € + PVM

Namo projektas Eduardas pasižymi originaliais išplanavimo bei dizaino sprendimais, todėl ypač patiks jaunoms šeimoms. Dviejų aukštų namo projektas skirtas 2-3-4 asmenų šeimai, jį sudaro du miegamieji arba vienas miegamasis ir didelis darbo kambarys, didelė svetainė su puikiu vaizdu į lauką. Namo projektas yra optimalaus dydžio - bendras plotas sudaro 127,87 m2, gyvenamasis plotas - 86,61 m2. Šio projekto turime kelis skirtingus suplanavimus ir neabejojame, jog įtiksime Jūsų norams su šiuo namo projektu.

Rekomenduojame
  • NP5 House
  • NPS TECHNOLOGY
  • NP5
  • NP5 Constructions
Nuo idėjos iki rakto...

© 2020 NPS Visos teisės saugomos. Privatumo politika.

Interneto svetainių kūrimas Interneto svetainių kūrimas OWEXX
Namų projektai

Reikia pagalbos?
O gal turite klausimų?

Jus aptarnaus įmonės konsultantas

Palikti žinutę
Reikia pagalbos?
Menu
Back

Namo projektas Eduardas

Bendra informacija

Bendras plotas 127,87 m2
Gyvenamasis plotas 86,61 m2
Užstatymo plotas 98,83 m2
Ilgis 6,96 m
Plotis 14,20 m
Aukštis 8,02 m
Stogo pasvirimas 45°
Perkant internetu € 1.665,00
Namo projekto kaina € 1.850,00
101. Tambūras 4,00  m2
102. Svetainė 24,78  m2
103. Katilinė 7,17  m2
104. Sanmazgas 3,62  m2
105. Virtuvė - valgomasis 23,70  m2
106. Holas - laiptinė 10,65  m2
Viso: 73,92 m2

Pirmo aukšto planas

201. Holas - laiptinė 5,57  m2
202. Darbo kambarys 18,99  m2
203. Sanmazgas 4,88  m2
204. Sandėliukas 3,04  m2
205. Tėvų miegamasis 19,14  m2
206. Drabužinė 2,35  m2
Viso: 53,97 m2

Antro aukšto planas

Video

Pastato duomenys

Aukštų skaičius 2
Kambarių skaičius 2
Sanmazgų skaičius 2
Naudingas plotas 127,87 m2
Pamatų konstruktyvas pagal geologiją 350 € + PVM
Kaina su statybos leidimu 3500 € + PVM
Namo projekto 3D modelis 219 € + PVM

Namo projektas Eduardas pasižymi originaliais išplanavimo bei dizaino sprendimais, todėl ypač patiks jaunoms šeimoms. Dviejų aukštų namo projektas skirtas 2-3-4 asmenų šeimai, jį sudaro du miegamieji arba vienas miegamasis ir didelis darbo kambarys, didelė svetainė su puikiu vaizdu į lauką. Namo projektas yra optimalaus dydžio - bendras plotas sudaro 127,87 m2, gyvenamasis plotas - 86,61 m2. Šio projekto turime kelis skirtingus suplanavimus ir neabejojame, jog įtiksime Jūsų norams su šiuo namo projektu.

Rekomenduojame
  • NP5 House
  • NPS TECHNOLOGY
  • NP5
  • NP5 Constructions
Nuo idėjos iki rakto...

© 2020 NPS Visos teisės saugomos. Privatumo politika.

Interneto svetainių kūrimas Interneto svetainių kūrimas OWEXX
Pilna www.namuprojektas.lt versija
Mobili www.namuprojektas.lt versija