Namo projektas Laurynas
Bendra informacija
| Bendras plotas | 143,32 m2 |
|---|---|
| Gyvenamasis plotas | 71,57 m2 |
| Užstatymo plotas | 176,63 m2 |
| Ilgis | 12,65 m |
| Plotis | 16,46 m |
| Aukštis | 5,62 m |
| Stogo pasvirimas | 15° |
| Perkant internetu | € 1.665,00 |
| Namo projekto kaina | € 1.850,00 |
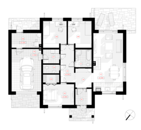
| 101. Tambūras | 5,31 m2 |
|---|---|
| 102. Tėvų miegamasis | 12,95 m2 |
| 103. Drabužinė | 2,66 m2 |
| 104. Sanmazgas | 2,89 m2 |
| 105. Garažas | 25,14 m2 |
| 106. Katilinė | 8,65 m2 |
| 107. Skalbykla | 4,62 m2 |
| 108. Vaiko kambarys | 12,11 m2 |
| 109. Vaiko kambarys | 12,11 m2 |
| 110. Koridorius | 10,36 m2 |
| 111. Sanmazgas | 5,87 m2 |
| 112. Svetainė - virtuvė - valgomasis | 34,41 m2 |
| 113. Holas | 6,26 m2 |
| Viso: | 143,34 m2 |
Video
Pastato duomenys
| Aukštų skaičius | 1 |
|---|---|
| Kambarių skaičius | 3 |
| Sanmazgų skaičius | 2 |
| Garažo vietų skaičius | 1 |
| Naudingas plotas | 118,19 m2 |
| Pamatų konstruktyvas pagal geologiją | 350 € + PVM |
| Min. sklypo plotas | 600.00 m2 |
| Kaina su statybos leidimu | 3500 € + PVM |
| Namo projekto 3D modelis | 219 € + PVM |
Ekonomiškas ir kompaktiškas vienaaukštis gyvenamasis namas Laurynas – 143,32 m2 bendro ploto, su garažu ir trimis šviesiais ir erdviais kambariais su individualiomis drabužinėmis, erdvia gyvenamąja erdve, kurioje telpa svetainė, virtuvė ir valgomasis. Namas su dvišlaičiu stogu, paprasto ir patogaus išplanavimo, jame galės įsikurti 3 - 4 asmenų šeima. Prie namo numatyta 15,00 m2 terasa. Stogo, sienų, namo apdailos statybinės medžiagos parenkamos kiekvienam užsakovui individualiai rengiant techninį (techninį – darbo) projektą. Galimi įvairūs pakeitimai namo plane ar fasaduose. Gyvenamojo namo statyba yra nesudėtinga ir ekonomiška, dėl parinktų paprastų konstrukcijų ir sprendinių.

Projektavimo eiga ir dokumentai
Įdėti į krepšelį





