Informuojame, kad svetainėje naudojami slapukai (angl. cookies) produktų krepšelio formavimui bei tinkamam šios svetainės funkcionavimui. Detalesnę informaciją apie naudojamus slapukus, bei kaip atsisakyti savo sutikimo, galite rasti čia.

Sutinku uždaryti

Namo projektas Valentas

Bendra informacija

Bendras plotas 125,84 m2
Gyvenamasis plotas 82,32 m2
Užstatymo plotas 157,13 m2
Ilgis 10,14 m
Plotis 16,57 m
Aukštis 6,01 m
Stogo pasvirimas 25°
Perkant internetu € 1.665,00
Namo projekto kaina € 1.850,00
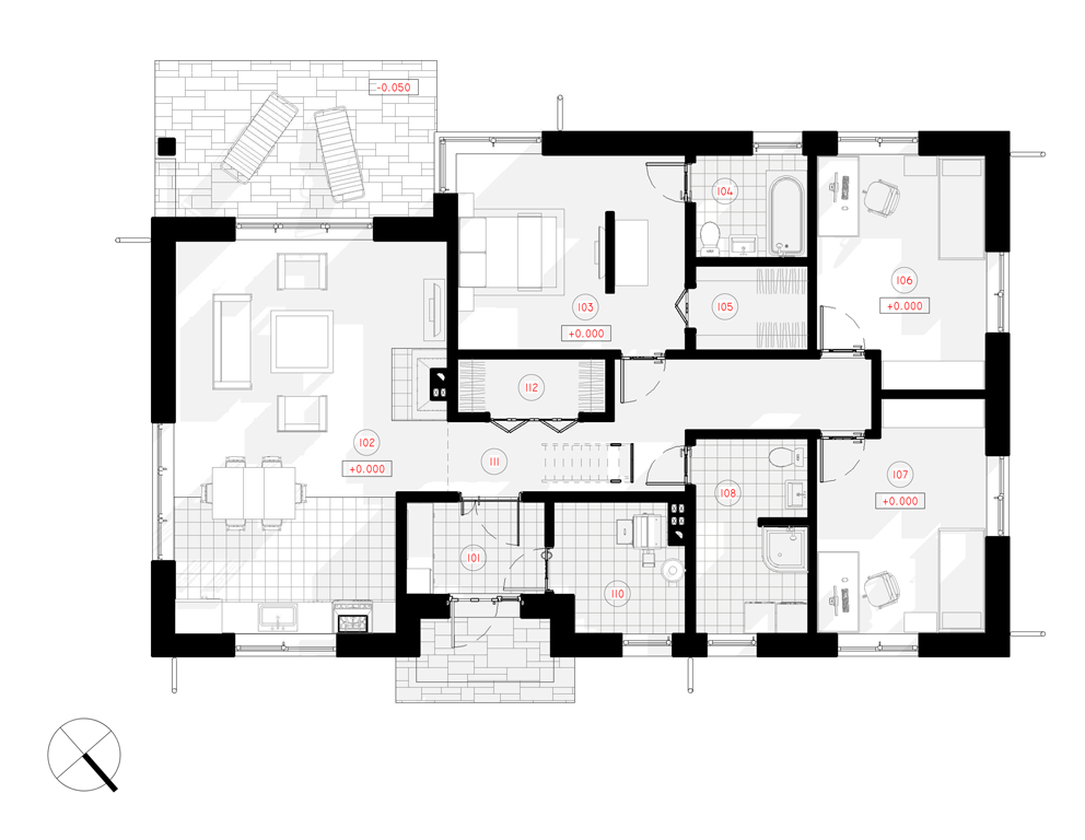
101. Tambūras 4,91  m2
102. Svetainė - virtuvė - valgomasis 37,41  m2
103. Tėvų miegamasis 16,66  m2
104. Sanmazgas 4,42  m2
105. Drabužinė 3,63  m2
106. Vaiko kambarys 14,13  m2
107. Vaiko kambarys 14,13  m2
108. Sanmazgas 8,23  m2
110. Katilinė 6,03  m2
111. Koridorius - holas 13,20  m2
112. Drabužinė 3,10  m2
Viso: 125,85 m2

Pirmo aukšto planas

Video

Pastato duomenys

Aukštų skaičius 1
Kambarių skaičius 3
Sanmazgų skaičius 2
Naudingas plotas 125,84 m2
Pamatų konstruktyvas pagal geologiją 350 € + PVM
Min. sklypo plotas 600,00 m2
Kaina su statybos leidimu 3500 € + PVM
Namo projekto 3D modelis 219 € + PVM

Kompaktiškas ir jaukus tradicinio stiliaus namo projektas - Valentas, skirtas  3 - 4 asmenų šeimai. Namo bendras plotas tik 125,84 m2, kas šį namo projektą daro labai ekonomišką eksploatuoti ir šaltuoju metų laikotarpiu. Patalpų išdėstymas - racionalus, patogus ir funkcionalus, jame numatytos visos būtiniausios patalpos. Prie namo numatyta dengta 15 m2 terasa, į ją galima patekti iš svetainės ir šeimininkų miegamojo, kad šiltais vasaros vakarais palydėdami besileidžiančią saulę galėtumėte pasimėgauti puodeliu raminančios arbatos ar taure vyno.

Turime ir kitų šio projekto vidaus plano variantų, todėl jei Jūsų akį patraukė šis nebrangaus namo projektas, kreipkitės į mus, įsigilinę į Jūsų norus, padėsime priimti tinkamiausią sprendimą ir atliksime pakeitimus.

Namo konstrukciniai sprendimai ir statyba nesudėtingi, dėl paprastų konstrukcijų ir nedidelių angų. Stogo danga, sienų, ir kitos namo apdailos, bei statybinės medžiagos parenkamos pagal kiekvieną užsakovą individualiai.

Rekomenduojame
  • NPS TECHNOLOGY
  • NP5 Constructions
  • NP5 House
  • NP5
Nuo idėjos iki rakto...

© 2020 NPS Visos teisės saugomos. Privatumo politika.

Interneto svetainių kūrimas Interneto svetainių kūrimas OWEXX
Namų projektai

Reikia pagalbos?
O gal turite klausimų?

Jus aptarnaus įmonės konsultantas

Palikti žinutę
Reikia pagalbos?
Menu
Back

Namo projektas Valentas

Bendra informacija

Bendras plotas 125,84 m2
Gyvenamasis plotas 82,32 m2
Užstatymo plotas 157,13 m2
Ilgis 10,14 m
Plotis 16,57 m
Aukštis 6,01 m
Stogo pasvirimas 25°
Perkant internetu € 1.665,00
Namo projekto kaina € 1.850,00
101. Tambūras 4,91  m2
102. Svetainė - virtuvė - valgomasis 37,41  m2
103. Tėvų miegamasis 16,66  m2
104. Sanmazgas 4,42  m2
105. Drabužinė 3,63  m2
106. Vaiko kambarys 14,13  m2
107. Vaiko kambarys 14,13  m2
108. Sanmazgas 8,23  m2
110. Katilinė 6,03  m2
111. Koridorius - holas 13,20  m2
112. Drabužinė 3,10  m2
Viso: 125,85 m2

Pirmo aukšto planas

Video

Pastato duomenys

Aukštų skaičius 1
Kambarių skaičius 3
Sanmazgų skaičius 2
Naudingas plotas 125,84 m2
Pamatų konstruktyvas pagal geologiją 350 € + PVM
Min. sklypo plotas 600,00 m2
Kaina su statybos leidimu 3500 € + PVM
Namo projekto 3D modelis 219 € + PVM

Kompaktiškas ir jaukus tradicinio stiliaus namo projektas - Valentas, skirtas  3 - 4 asmenų šeimai. Namo bendras plotas tik 125,84 m2, kas šį namo projektą daro labai ekonomišką eksploatuoti ir šaltuoju metų laikotarpiu. Patalpų išdėstymas - racionalus, patogus ir funkcionalus, jame numatytos visos būtiniausios patalpos. Prie namo numatyta dengta 15 m2 terasa, į ją galima patekti iš svetainės ir šeimininkų miegamojo, kad šiltais vasaros vakarais palydėdami besileidžiančią saulę galėtumėte pasimėgauti puodeliu raminančios arbatos ar taure vyno.

Turime ir kitų šio projekto vidaus plano variantų, todėl jei Jūsų akį patraukė šis nebrangaus namo projektas, kreipkitės į mus, įsigilinę į Jūsų norus, padėsime priimti tinkamiausią sprendimą ir atliksime pakeitimus.

Namo konstrukciniai sprendimai ir statyba nesudėtingi, dėl paprastų konstrukcijų ir nedidelių angų. Stogo danga, sienų, ir kitos namo apdailos, bei statybinės medžiagos parenkamos pagal kiekvieną užsakovą individualiai.

Rekomenduojame
  • NPS TECHNOLOGY
  • NP5 Constructions
  • NP5 House
  • NP5
Nuo idėjos iki rakto...

© 2020 NPS Visos teisės saugomos. Privatumo politika.

Interneto svetainių kūrimas Interneto svetainių kūrimas OWEXX
Pilna www.namuprojektas.lt versija
Mobili www.namuprojektas.lt versija