
Namo projektas Ernesta
Bendra informacija
Bendras plotas | 192,20 m2 |
---|---|
Gyvenamasis plotas | 117,69 m2 |
Užstatymo plotas | 162.71/209.26 m2 |
Ilgis | 9,95 m |
Plotis | 18,80 m |
Aukštis | 8,51 m |
Stogo pasvirimas | 30 ° |
Namo projekto kaina | € 1850.00 |
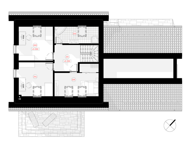
Rūsio planas
Visi parametrai
Aukštų skaičius | 2 |
---|---|
Kambarių skaičius | 3 |
Sanmazgų skaičius | 2 |
Garažo vietų skaičius | 2 |
Naudingas plotas | 192,20 m2 |
Pamatų konstruktyvas pagal geologiją | 350 € + PVM |
Kaina su statybos leidimu | 3500 € + PVM |
Karkasinis, skandinaviško stiliaus namas Ernesta tinkamas pasirinkimas šeimai, svajojančiai apie dviejų aukštų, nemažą, racionalų namo projektą. Jis pritaikytas 4-5 asmenų šeimai. Projekte galimi smulkūs planiniai pakeitimai, bet namas gali būti statomas iš skydų.