Namo projektas Silvestras
Bendra informacija
| Bendras plotas |
102,20 m2 |
| Gyvenamasis plotas |
74,56 m2 |
| Užstatymo plotas |
210.62/256.48 m2 |
| Ilgis |
8,65 m |
| Plotis |
27,36 m |
| Aukštis |
8,67 m |
| Stogo pasvirimas |
18/24 ° |
| Namo projekto kaina |
€ 3000.00 |
Pirmo aukšto planas
| 101. Tambūras |
4,23 m2 |
| 102. Sandėliukas |
1,86 m2 |
| 103. Svetainė - virtuvė - valgomasis |
31,33 m2 |
| 104. Darbo kambarys |
8,96 m2 |
| 105. Sanmazgas |
1,57 m2 |
| 106. Katilinė |
4,12 m2 |
| Viso: |
52,07 m2 |
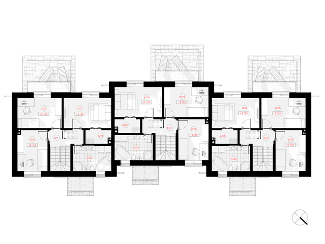
Antro aukšto planas
| 201. Holas - laiptinė |
4,60 m2 |
| 202. Vaiko kambarys |
10,47 m2 |
| 203. Vaiko kambarys |
11,47 m2 |
| 204. Tėvų miegamasis |
12,32 m2 |
| 205. Drabužinė |
2,93 m2 |
| 206. Sanmazgas |
8,32 m2 |
| Viso: |
50,11 m2 |
Visi parametrai
| Aukštų skaičius |
2 |
| Kambarių skaičius |
4 |
| Sanmazgų skaičius |
2 |
| Naudingas plotas |
102,20 m2 |
| Pamatų konstruktyvas pagal geologiją |
500 € + PVM |
| Kaina su statybos leidimu |
5000 € + PVM |