Informuojame, kad svetainėje naudojami slapukai (angl. cookies) produktų krepšelio formavimui bei tinkamam šios svetainės funkcionavimui. Detalesnę informaciją apie naudojamus slapukus, bei kaip atsisakyti savo sutikimo, galite rasti čia.

Sutinku uždaryti

Namo projektas Iveta

Bendra informacija

Bendras plotas 117,54 m2
Gyvenamasis plotas 68,34 m2
Užstatymo plotas 154,36 m2
Ilgis 9,46 m
Plotis 18,68 m
Aukštis 5,82 m
Stogo pasvirimas 23°
Perkant internetu € 1.665,00
Namo projekto kaina € 1.850,00
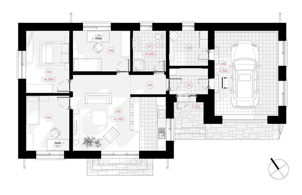
101. Tambūras 5,07  m2
102. Holas 3,49  m2
103. Svetainė - virtuvė - valgomasis 31,15  m2
104. Vaiko kambarys 11,97  m2
105. Tėvų miegamasis 13,51  m2
106. Vaiko kambarys 11,70  m2
107. Sanmazgas 6,79  m2
108. Katilinė 6,85  m2
109. Garažas 27,00  m2
Viso: 117,53 m2

Pirmo aukšto planas

Ekonomiškas, nedidelis, pagrindiniams šeimos poreikiams pritaikytas namo projektas - Iveta | NPS Projektai

Pastato duomenys

Aukštų skaičius 1
Kambarių skaičius 3
Sanmazgų skaičius 1
Garažo vietų skaičius 1
Naudingas plotas 90,54 m2
Pamatų konstruktyvas pagal geologiją 350 € + PVM
Kaina su statybos leidimu 3500 € + PVM

Norintiems, ekonomiško, nedidelio, pagrindiniams šeimos poreikiams pritaikyto namo projekto- Iveta kaip tik Jums. Namas suprojektuotas sklypui su pietiniu įvažiavimu. Projektas gali būti keičiamas, didinamas arba mažinamas, garažas dviems ar vienam automobiliui.

Rekomenduojame
  • NPS TECHNOLOGY
  • NP5 Constructions
  • NP5 House
  • NP5
Nuo idėjos iki rakto...

© 2020 NPS Visos teisės saugomos. Privatumo politika.

Interneto svetainių kūrimas Interneto svetainių kūrimas OWEXX
Namų projektai

Reikia pagalbos?
O gal turite klausimų?

Jus aptarnaus įmonės konsultantas

Palikti žinutę
Reikia pagalbos?
Menu
Back

Namo projektas Iveta

Bendra informacija

Bendras plotas 117,54 m2
Gyvenamasis plotas 68,34 m2
Užstatymo plotas 154,36 m2
Ilgis 9,46 m
Plotis 18,68 m
Aukštis 5,82 m
Stogo pasvirimas 23°
Perkant internetu € 1.665,00
Namo projekto kaina € 1.850,00
101. Tambūras 5,07  m2
102. Holas 3,49  m2
103. Svetainė - virtuvė - valgomasis 31,15  m2
104. Vaiko kambarys 11,97  m2
105. Tėvų miegamasis 13,51  m2
106. Vaiko kambarys 11,70  m2
107. Sanmazgas 6,79  m2
108. Katilinė 6,85  m2
109. Garažas 27,00  m2
Viso: 117,53 m2

Pirmo aukšto planas

Ekonomiškas, nedidelis, pagrindiniams šeimos poreikiams pritaikytas namo projektas - Iveta | NPS Projektai

Pastato duomenys

Aukštų skaičius 1
Kambarių skaičius 3
Sanmazgų skaičius 1
Garažo vietų skaičius 1
Naudingas plotas 90,54 m2
Pamatų konstruktyvas pagal geologiją 350 € + PVM
Kaina su statybos leidimu 3500 € + PVM

Norintiems, ekonomiško, nedidelio, pagrindiniams šeimos poreikiams pritaikyto namo projekto- Iveta kaip tik Jums. Namas suprojektuotas sklypui su pietiniu įvažiavimu. Projektas gali būti keičiamas, didinamas arba mažinamas, garažas dviems ar vienam automobiliui.

Rekomenduojame
  • NPS TECHNOLOGY
  • NP5 Constructions
  • NP5 House
  • NP5
Nuo idėjos iki rakto...

© 2020 NPS Visos teisės saugomos. Privatumo politika.

Interneto svetainių kūrimas Interneto svetainių kūrimas OWEXX
Pilna www.namuprojektas.lt versija
Mobili www.namuprojektas.lt versija